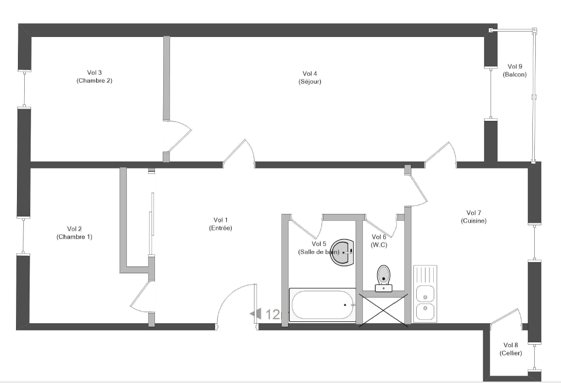
Découvrez ce T3 de 66 m²,au 3er étage, idéal pour une petite famille ou couple. Situé dans un environnement pratique et agréable, il offre un excellent rapport qualité/prix tout en assurant un confort optimal grâce au chauffage inclus.
L’appartement comprend notamment :
Chauffage inclus
Proche du centre ville et des services
Facilité de stationnement













